新築戸建て 狭山市笹井3丁目 埼玉県狭山市笹井3-27|2,890万円の新築一戸建て|株式会社すまらいふ
| 価格 | 2,890万円 ![]() |
||||
|---|---|---|---|---|---|
| 所在地 | 埼玉県狭山市笹井3-27
この地域周辺の物件を見る |
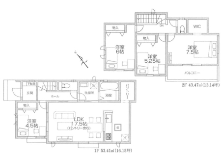
土地面積 | 150.07m² (公簿) (45.39坪) | 建物面積 | 96.88u |
| 築年月 | 2025年9月築 | 間取り | 4LDK (-) | ||
| 交通 |
西武新宿線 狭山市 バス10分 グリーンハイツ 停歩14分
|
||||
| 特徴 |
|
|---|---|
| セールスコメント | ◆南側LDKのため室内は明るいです! ◆ちょっとした庭がございます! ◆交通量の少ない前面道路です! 〜・〜・〜・〜・〜・〜・〜・〜・〜・〜・〜・〜・〜・〜・〜・〜・〜・〜・〜 お問い合わせは 【 0120-515-888】 までお気軽にどうぞ♪ 担当のスタッフが分かりやすく丁寧にご対応を致します! 埼玉県所沢市宮本町1丁目9-25 株式会社すまらいふ |
| 採光面 | 南西 | 構造/階数 | 木造/地上2階建 |
|---|---|---|---|
| 建ぺい率 | 50(%) | 容積率 | 80(%) |
| 駐車場 | 有 | 現況/引渡し | 建築済/即時 |
| 土地権利 | 所有権 | 私道負担面積 | なし |
| 接道状況 | 接道: 南西 公道 道路幅: 4.2m | 用途地域 |
第一種低層住居専用地域
|
| セットバック | なし | 法令上の制限 | 第22条区域 |
| 地目 | 宅地 | 地勢 | 平坦 |
| 建築確認番号 | 第HPA-25-06470-1号 | 都市計画 | 市街化区域 |
| 取引態様 | 仲介 | ||
| 情報更新日 | 2025年10月30日 | 次回更新日 | 2025年11月13日 |
| 小学校区 | 笹井小学校 (狭山市) この学区の他の物件を見る |
中学校区 | 西中学校 (狭山市) この学区の他の物件を見る |
|---|
| 価格 | 万円 | ||
|---|---|---|---|
| 年利率 | % |
||
| ボーナス払い | 返済年数 | ||
| 頭金 | 直接入力する | 万円 | |

毎月のご返済額 |
ボーナス(×年2回) |
物件価格2,890万円 |
◆駐車3台可◆小学校まで徒歩5分◆完成済み◆