中古戸建 飯能市大字笠縫 埼玉県飯能市笠縫135-14|2,780万円の中古一戸建て|株式会社すまらいふ
| 価格 | 2,780万円 ![]() |
||||
|---|---|---|---|---|---|
| 所在地 | 埼玉県飯能市笠縫135-14
この地域周辺の物件を見る |
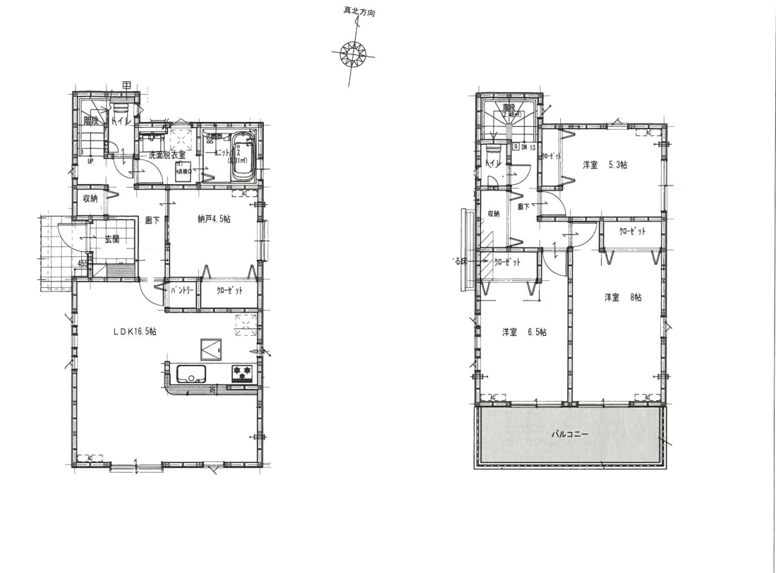
土地面積 | 137m² (公簿) (41.44坪) | 建物面積 | 101.85u |
| 築年月 | 2017年4月築 | 間取り | 3SLDK (-) | ||
| 交通 |
JR八高線 東飯能 徒歩18分
西武池袋線 飯能 徒歩20分 |
||||
| 特徴 |
|
|---|---|
| セールスコメント | - |
| 採光面 | 南 | 構造/階数 | 木造/地上2階建 |
|---|---|---|---|
| 建ぺい率 | 60(%) | 容積率 | 200(%) |
| 駐車場 | 有 | 現況/引渡し | 居住中/相談 |
| 土地権利 | 所有権 | 私道負担面積 | なし |
| 接道状況 | 接道: 南 公道 道路幅: 6m 接道: 西 公道 道路幅: 4m |
用途地域 |
第一種住居地域
|
| セットバック | なし | 法令上の制限 | 景観法、笠縫土地区画整理事業中 |
| 地目 | 宅地 | 地勢 | 平坦 |
| 建築確認番号 | 都市計画 | 市街化区域 | |
| 取引態様 | 一般媒介 | ||
| 情報更新日 | 2025年12月07日 | 次回更新日 | 2025年12月21日 |
| 小学校区 | 飯能市立加治小学校 (埼玉県飯能市) この学区の他の物件を見る |
中学校区 | 加治中学校 (埼玉県飯能市) この学区の他の物件を見る |
|---|
| 価格 | 万円 | ||
|---|---|---|---|
| 年利率 | % |
||
| ボーナス払い | 返済年数 | ||
| 頭金 | 直接入力する | 万円 | |

毎月のご返済額 |
ボーナス(×年2回) |
物件価格2,780万円 |
◆南と西道路の角地◆築8年◆室内は綺麗にお使いです◆