川越市藤間 全1棟 A号棟 埼玉県川越市藤間992|3,090万円の新築一戸建て|株式会社すまらいふ
| 価格 | 3,090万円 ![]() |
||||
|---|---|---|---|---|---|
| 所在地 | 埼玉県川越市藤間992
この地域周辺の物件を見る |
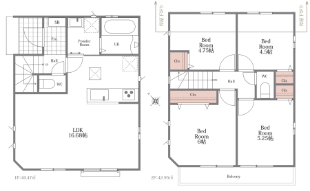
土地面積 | 79.33m² (実測) (23.99坪) | 建物面積 | 83.42u |
| 築年月 | 2026年5月築 | 間取り | 4LDK (-) | ||
| 交通 |
東武東上線 上福岡 徒歩18分
|
||||
| 特徴 |
|
|---|---|
| セールスコメント | ◆2026年5月下旬頃に完成予定です!建物完成間近で室内のご見学が可能です♪ ◆建物プラン4LDKを確保しました!2階4部屋で大家族にも適した間取りです♪ ◆長期優良住宅仕様!設計・建設住宅性能評価書W取得予定!30年延長保証システム有り♪ ◆頭金0円で購入可能です!住宅ローンご相談下さい!最適な資金計画をご提案致します♪ |
| 採光面 | 南 | 構造/階数 | 木造/地上2階建 |
|---|---|---|---|
| 建ぺい率 | 60(%) | 容積率 | 200(%) |
| 駐車場 | - | 現況/引渡し | 建築中/2026年6月中旬 |
| 土地権利 | 所有権 | 私道負担面積 | なし |
| 接道状況 | 接道: 北西 4m 公道 | 用途地域 |
第一種住居地域
|
| セットバック | なし | 法令上の制限 | なし |
| 地目 | 宅地 | 地勢 | 平坦 |
| 建築確認番号 | 第HPA-26-01058-1号 | 都市計画 | 市街化区域 |
| 取引態様 | 仲介 | ||
| 情報更新日 | 2026年05月04日 | 次回更新日 | 2026年05月18日 |
| 小学校区 | 高階西小学校 (川越市) この学区の他の物件を見る |
中学校区 | 高階西中学校 (川越市) この学区の他の物件を見る |
|---|
| 価格 | 万円 | ||
|---|---|---|---|
| 年利率 | % |
||
| ボーナス払い | 返済年数 | ||
| 頭金 | 直接入力する | 万円 | |

毎月のご返済額 |
ボーナス(×年2回) |
物件価格3,090万円 |
川越市藤間に限定1棟の新築戸建が誕生!
建物完成間近で室内のご見学が可能♪5/4 新価格!