新築戸建 所沢市北所沢限定1棟 埼玉県所沢市北所沢町2198-39|4,580万円の新築一戸建て|株式会社すまらいふ
| 価格 | 4,580万円 ![]() |
||||
|---|---|---|---|---|---|
| 所在地 | 埼玉県所沢市北所沢町2198-39
この地域周辺の物件を見る |
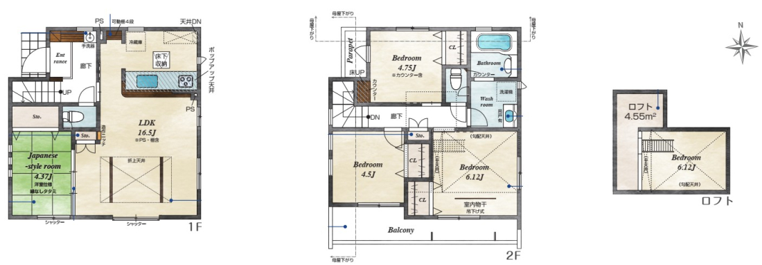
土地面積 | 87.05m² (実測) (26.33坪) | 建物面積 | 86.94u |
| 築年月 | 2026年6月築 | 間取り | 4LDK (-) | ||
| 交通 |
西武新宿線 新所沢 徒歩9分
西武新宿線 航空公園 徒歩27分 西武池袋線 小手指 徒歩33分 |
||||

| 特徴 |
|
|---|---|
| セールスコメント | 大好評!プレゼントキャンペーン開催中! ◆子供乗せ電動アシスト自転車 20名様 ◆液晶テレビ 20名様 ◆ドラム式洗濯機 10名様 ※期間中にご成約頂いたお客様に先着で嬉しいプレゼント! プレゼントの詳細は弊社へお気軽にお問合せ下さい! TEL 0120-515-888 |
| 採光面 | 南西 | 構造/階数 | 木造/地上2階建 |
|---|---|---|---|
| 建ぺい率 | 60(%) | 容積率 | 100(%) |
| 駐車場 | 有 | 現況/引渡し | 建築中/相談 |
| 土地権利 | 所有権 | 私道負担面積 | なし |
| 接道状況 | 接道: 北 4m 公道 接道: 西 4m 公道 |
用途地域 |
第一種低層住居専用地域
|
| セットバック | なし | 法令上の制限 | なし |
| 地目 | 宅地 | 地勢 | |
| 建築確認番号 | 都市計画 | - | |
| 取引態様 | 仲介 | ||
| 情報更新日 | 2026年03月08日 | 次回更新日 | 2026年03月22日 |
| 小学校区 | 所沢市立美原小学校 (埼玉県所沢市) この学区の他の物件を見る |
中学校区 | 美原中学校 (埼玉県所沢市) この学区の他の物件を見る |
|---|
| 価格 | 万円 | ||
|---|---|---|---|
| 年利率 | % |
||
| ボーナス払い | 返済年数 | ||
| 頭金 | 直接入力する | 万円 | |

毎月のご返済額 |
ボーナス(×年2回) |
物件価格4,580万円 |
初公開!「新所沢」駅徒歩9分、和室&ロフト付き4LDK♪お好きな日時でモデルハウス見学可能♪
●長期優良認定住宅
●食器洗い乾燥機付き
●敷地40坪超〜
●南道路 前面道路6m公道
●車庫並列2台可能
●大型4LDK
お問い合わせは 【 0120-515-888 】 までお気軽にどうぞ♪
担当のスタッフが分かりやすく丁寧にご対応を致します!
埼玉県所沢市宮本町1丁目9-25 【 株式会社すまらいふ 】