狭山市水野43期全2棟 埼玉県狭山市水野|2590万円〜2690万円の新築一戸建て|株式会社すまらいふ
| 価格 | 2590万円〜2690万円 ![]() |
||||
|---|---|---|---|---|---|
| 所在地 | 埼玉県狭山市水野
この地域周辺の物件を見る |
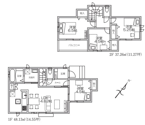
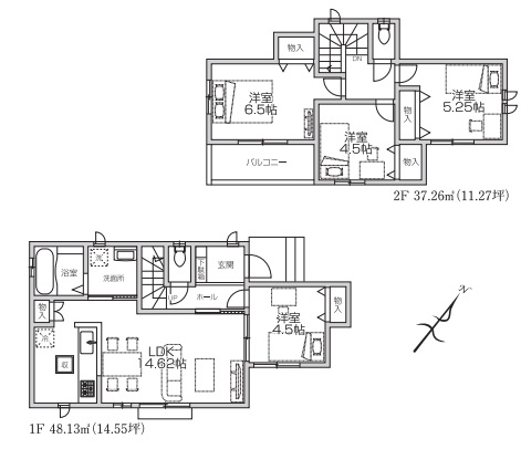
土地面積 | 107.41m² (32.49坪) | 建物面積 | 85.39u |
| 築年月 | 2025年7月築 | 間取り | 4LDK (-) | ||
| 交通 |
西武新宿線 入曽 徒歩19分
|
||||

| 特徴 |
|
|---|---|
| セールスコメント | 大好評!プレゼントキャンペーン開催中! ◆子供乗せ電動アシスト自転車 20名様 ◆ダイソン掃除機 20名様 ◆ドラム式洗濯機 10名様 ※期間中にご成約頂いたお客様に先着で嬉しいプレゼント! TEL 0120-515-888 |
| 採光面 | - | 構造/階数 | 木造/地上2階建 |
|---|---|---|---|
| 建ぺい率 | 50(%) | 容積率 | 80(%) |
| 駐車場 | 有 | 現況/引渡し | 建築中/2025年7月下旬 |
| 土地権利 | 所有権 | 私道負担面積 | なし |
| 接道状況 | 接道: 東 6m 公道 | 用途地域 |
第一種低層住居専用地域
|
| セットバック | - | 法令上の制限 | - |
| 地目 | 宅地 | 地勢 | |
| 建築確認番号 | 都市計画 | 市街化区域 | |
| 取引態様 | 仲介 | ||
| 情報更新日 | 2025年11月13日 | 次回更新日 | 2025年11月27日 |
| 小学校区 | 山王小学校 (狭山市) この学区の他の物件を見る |
中学校区 | 山王中学校 (狭山市) この学区の他の物件を見る |
|---|
| 価格 | 万円 | ||
|---|---|---|---|
| 年利率 | % |
||
| ボーナス払い | 返済年数 | ||
| 頭金 | 直接入力する | 万円 | |

毎月のご返済額 |
ボーナス(×年2回) |
物件価格2590万円〜2690万円 |




◇4LDK!車庫2台可!全面道路6m!◇
堂々完成!本日室内の見学可能!
◆周辺環境、住環境良好!
◆低金利の金融機関提携(三菱UFJ銀行等)実行金利0.595%から!
◆頭金0円購入可♪月々8万円台からのお支払いも可能♪
◆住宅性能評価書!設計建設W取得!耐震等級などで最高等級取得!