狭山市水野44期 埼玉県狭山市水野|3,290万円の新築一戸建て|株式会社すまらいふ
| 価格 | 3,290万円 ![]() |
||||
|---|---|---|---|---|---|
| 所在地 | 埼玉県狭山市水野
この地域周辺の物件を見る |
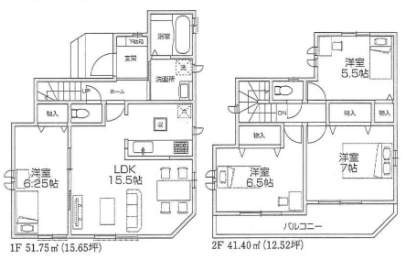
土地面積 | 100.79m² (30.48坪) | 建物面積 | 93.15u |
| 築年月 | 2025年12月築 | 間取り | 4LDK (-) | ||
| 交通 |
西武新宿線 入曽 徒歩12分
|
||||

| 特徴 |
|
|---|---|
| セールスコメント | 大好評!プレゼントキャンペーン開催中! ◆子供乗せ電動アシスト自転車 20名様 ◆ダイソン掃除機 20名様 ◆ドラム式洗濯機 10名様 ※期間中にご成約頂いたお客様に先着で嬉しいプレゼント! TEL 0120-515-888 |
| 採光面 | - | 構造/階数 | 木造/地上2階建 |
|---|---|---|---|
| 建ぺい率 | 60(%) | 容積率 | 200(%) |
| 駐車場 | 有 | 現況/引渡し | 建築中/- |
| 土地権利 | 所有権 | 私道負担面積 | - |
| 接道状況 | 接道: 北 4.6m 公道 接道: 西 4m 私道 |
用途地域 |
指定なし
|
| セットバック | - | 法令上の制限 | - |
| 地目 | 宅地 | 地勢 | |
| 建築確認番号 | 都市計画 | 市街化調整区域 | |
| 取引態様 | 仲介 | ||
| 情報更新日 | 2025年10月31日 | 次回更新日 | 2025年11月14日 |
| 小学校区 | 山王小学校 (狭山市) この学区の他の物件を見る |
中学校区 | 山王中学校 (狭山市) この学区の他の物件を見る |
|---|
| 価格 | 万円 | ||
|---|---|---|---|
| 年利率 | % |
||
| ボーナス払い | 返済年数 | ||
| 頭金 | 直接入力する | 万円 | |

毎月のご返済額 |
ボーナス(×年2回) |
物件価格3,290万円 |






新規分譲!駅徒歩12分!角地の4LDK!
長期優良住宅!減税・控除の優遇!
弊社にて現地販売会開催中!
土日平日いつでも室内の完成モデル棟の内覧が可能です!
■北西角地の陽当たり良い4LDK♪
■建物はZHE水準省エネ住宅!
■子育てグリーン住宅対象物件(対象者は40万円の給付)♪
■住宅ローンは頭金0円購入可!月々7万円台からのお支払いが可能!